Popis SMMS 052.7150W podlahový lift 86", dvojitý, 936–1806 mm, biely
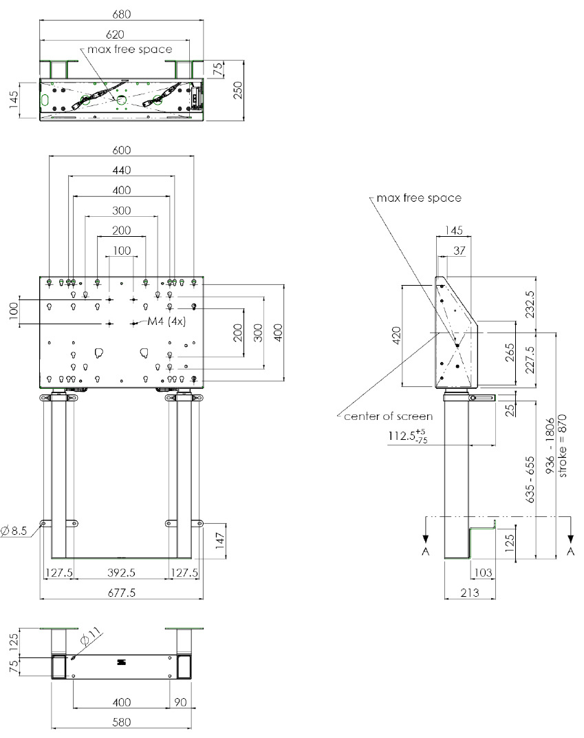
Motorizovaný vysoký zdvih obrazovek a displejů Stojan s elektrickým zdvihem využijete především v oblasti vzdělávání, digitální tvorby nebo produktového a firemního marketingu. Model 052.7150 W nabízí snadnou změnu výšky stojanu až o 870 mm, takže střed obrazovky se může pohybovat v rozpětí 936 – 1 806 mm.
Snadná montáž v několika základních krocích Držák je osazen uchyceními VESA až do 600 x 400 mm, pro případ montáže větších displejů je přibalen i adaptér zvyšující VESA až na 800 x 600 mm, takže bude vyhovovat i těm největším obrazovkám. V kabinetu za displejem je prostor pro umístění PC, přehrávače, tenkého klienta apod. Pro montáž těchto malých zařízení je stojan vybaven i rozhraním VESA 75/100 a možností uzamčení s pomocí dokoupitelného krytu.
Stabilita a bezpečnost celého systému Stojan je vhodný i do prostor se zvýšeným pohybem osob a k montáži dotykových výukových displejů. Systém stojanu, displeje a přídavné elektroniky je ukotven ke stěně pomocí nastavitelných držáků. Hmotnost celé sestavy spočívá na podlaze, ke které je pevně přikotvena. V případě nemožnosti kotvit stojan do podlahy lze využít možnosti volitelného příslušenství (viz níže).
Antikolizní senzor Podlahový stojan SmartMetals 052.7150 W je vybavený antikolizním senzorem, který snižuje riziko poškození zdvihu a displeje. Pokud stojanu brání při pohybu překážka, automaticky se zastaví. Navíc můžete drátový dálkový ovladač připevnit přímo k displeji, takže při změně polohy máte nad pohybem displeje stálou kontrolu.
Klíčové vlastnosti
Motorizované nastavení optimální pozorovací výšky
Snadná montáž v několika základních krocích (návod níže)
Luxusní vzhled i v nejvyšší poloze
Vyžaduje montáž k podlaze a přichycení ke stěně (nastavitelné kotvení)
Montážní rozhraní s většinou standardů VESA
Bez naprogramovaných pozic
Pro nastavení výšky je z bezpečnostních důvodů třeba stále držet tlačítko nahoru / dolů, po jejich uvolnění se pohyb zastaví
Technická specifikace
Max. rozsah VESA rozhraní 800 x 600 mm
Dálkové ovládání: zdvih 870 mm, rychlost pohybu max. 38 mm/s
Výška středu displeje 936 – 1 806 mm
Maximální nosnost 120 kg
Hmotnost: 36 kg
Reakční doba antikolizního systému: 1,5 s po aktivaci zdvihu
Řešení pro každé přání Rozšiřující příslušenství umožňuje komplexní využití stojanu na míru vašim potřebám.
Držák videokonferenční kamery
Polička pro klávesnici
Polička pro laptop
Dodatečný úchyt spodní časti stojanu ke stěně (pokud nelze vrtat do podlahy)
Velký podstavec pro volné postavení na podlahu (bez nutnosti fixovat ke stěně)
Uzamykatelný kryt úložného prostoru
Postranní smaltované / lakované bílé tabule (včetně montážní sady)
Adaptér pro změnu pozice displeje na šířku / na výšku